Villa de obra nueva en Sunrise Bay Finestrat en Finestrat
Vendido
Ref: 1229
En complejo Sunrise Bay Finestrat
Calle Praga s/n, Finestrat, Alicante Ver en el mapa
Villa
Tipo de casa
3 habs.
Habitaciones
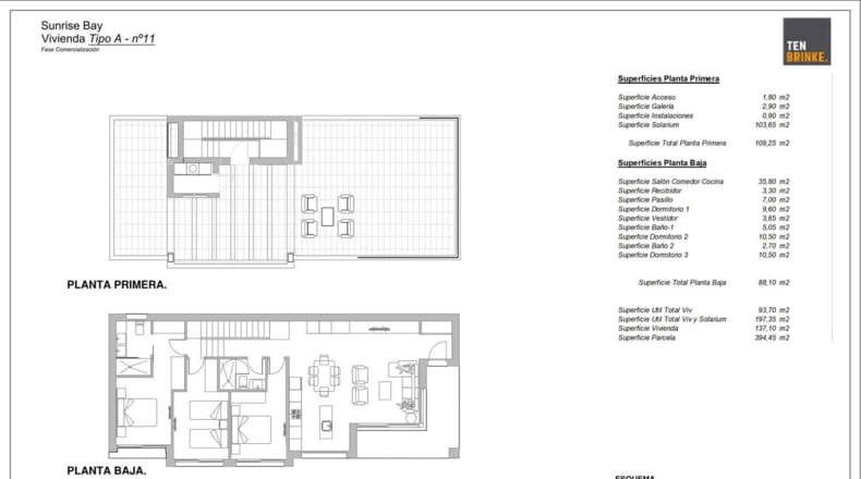
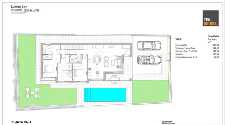
137-150 m2
Superficie construida
2024
Plazo
Propiedades similares de este diseño
Haznos una pregunta sobre precios Todas las viviendas han sido vendidas
Descripción
Casa de obra nueva de 3 dormitorios, 2 baños con superficie 137 m² construidos. tambien con siguientes comodidades: Aire acondicionado, Piscina privada, Armarios empotrados, Galería, Parking privado, Entrada privada, Cabina de ducha, Terraza, Garaje, Cocina Americana (Equipada). La casa dispone de una terraza. Los revestimientos de la vivienda son de Gres porcelánico.
Datos sobre el inmueble
Haznos una pregunta sobre las características Estado
Terminada
Tipo de casa
Villas
Carpintería exterior
Aluminio / Climalit
Tipo de calefacción
Instalación de aire acondicionado
Agua caliente
Aerotermia
Habitaciones
3
Baños
2
Terraza
Si
Garaje
Si
Tipo de cocina
Cocina Americana
Muebles en la cocina
Equipada
Common / Square size full
137-150 m²
Adicionalmente
Aire acondicionado
Piscina privada
Armarios empotrados
Galería
Parking privado
Entrada privada
Cabina de ducha
Terraza
Garaje
Tipo de material de suelo
- Gres porcelánico
Contactar con {owner}
Project / Second hand sell
Project / Second hand buy
Fotos y planos
Datos sobre la promoción
Haznos una pregunta sobre las características Promoción
Tipo de promoción
Urbanización
Tipo de Complejo
Residencial
Total de viviendas
12
Estado
Terminada
Entrega prevista
2024
Agua caliente
Aerotermia
Tipo de calefacción
Instalación de aire acondicionado
Carpintería exterior
Aluminio / Climalit
Tipo de ventilacion
Ventilación mecánica
Tipo de fachada
Monocapa
Instalación eléctrica
Red central
Superficie de la parcela
30000 m²
En promoción
Seguridad
Videoportero
Piscina privada
Parking privado
Dirección de la promoción
Haznos una pregunta sobre la ubicación Calle Praga s/n, Finestrat, Alicante
Contactar con obranueva.org
Contactar con obranueva.org



















